Pinery Residences Floor Plan

Detailed floor plan of all Pinery Residences units

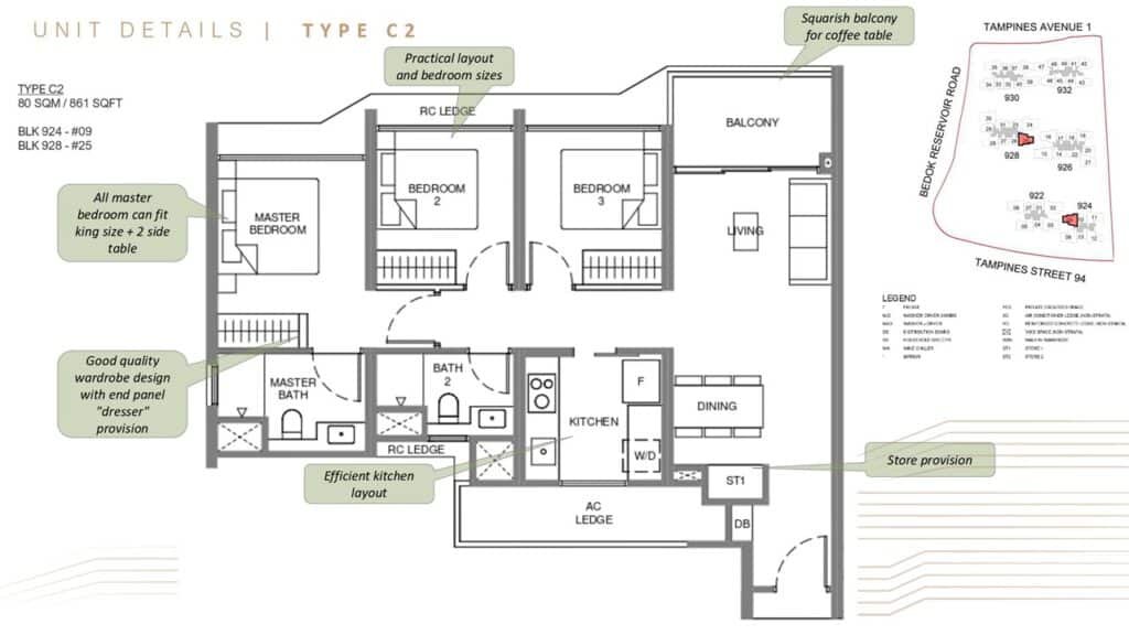
Pinery Residences Unit Floor Plans and Layouts

The units mix in Pinery Residences is as follows

Pinery Residences Floor Plan: Discover Your Ideal Living Space

Thoughtfully Designed for Diverse Lifestyles

The Pinery Residences floor plan collection offers a diverse range of unit types, meticulously designed to cater to various family sizes and lifestyle preferences. From cozy starter homes to spacious multi-generational abodes, every layout at Pinery Residences is crafted for optimal comfort, functionality, and aesthetic appeal.

Unit Mix Overview: Pinery Residences Tampines

Pinery Residences comprises approximately 588 residential units, featuring a comprehensive unit mix including:

  • 2-Bedroom Units: Ideal for singles, couples, or investors.
  • 3-Bedroom Units: Popular choice for young families seeking comfortable living spaces.
  • 4-Bedroom Units: Generous layouts for growing families.
  • 5-Bedroom Units: Expansive spaces for larger families desiring privacy and luxury.

Key Features of Each Pinery Residences Floor Plan

Each Pinery Residences floor plan emphasizes:

  • Efficient Layouts: Maximising usable space without compromising on design.
  • Natural Light & Ventilation: Thoughtful orientation to enhance brightness and airflow.
  • Quality Finishes: Premium materials and fittings throughout the living areas, bedrooms, and bathrooms.
  • Flexible Spaces: Some layouts may feature adaptable areas perfect for a home office or hobby room.

Understanding the Pinery Residences 3 Bedroom Price & Layouts

The Pinery Residences 3 bedroom price and layouts are highly sought after. These units are typically designed to provide ample space for nuclear families, often featuring:

  • Enclosed or open-concept kitchens.
  • Generously sized master bedrooms with en-suite bathrooms.
  • Additional bedrooms that can comfortably accommodate queen-sized beds.
  • Efficient living and dining areas for family interaction.

Choosing Your Ideal Unit

When reviewing the Pinery Residences floor plan, consider:

  • Family Needs: Match the number of bedrooms and overall size to your current and future requirements.
  • Lifestyle: Look for layouts that complement your daily routines, whether it’s a dedicated study space or a larger entertaining area.
  • Facing: Enquire about North or South-facing units to mitigate direct afternoon sun, enhancing comfort and energy efficiency.

Don’t miss the opportunity to explore these exceptional living spaces. For a detailed look at all available unit types and to discuss the Pinery Residences 3 bedroom price and other configurations, download our Pinery Residences e-brochure download or book your Pinery Residences showflat booking.

Register your Interest Now

Register your interest today to receive timely updates on Pinery Residences Showflat Viewing, Price List, Elevation Chart, Floor Plans, and E-Brochure. Gain access to Direct Developer Prices.

Get E-Brochure and Latest Updates

Register your interest to receive an E-Brochure and the latest updates as soon as they become available!

Pinery-Residences-Logos